
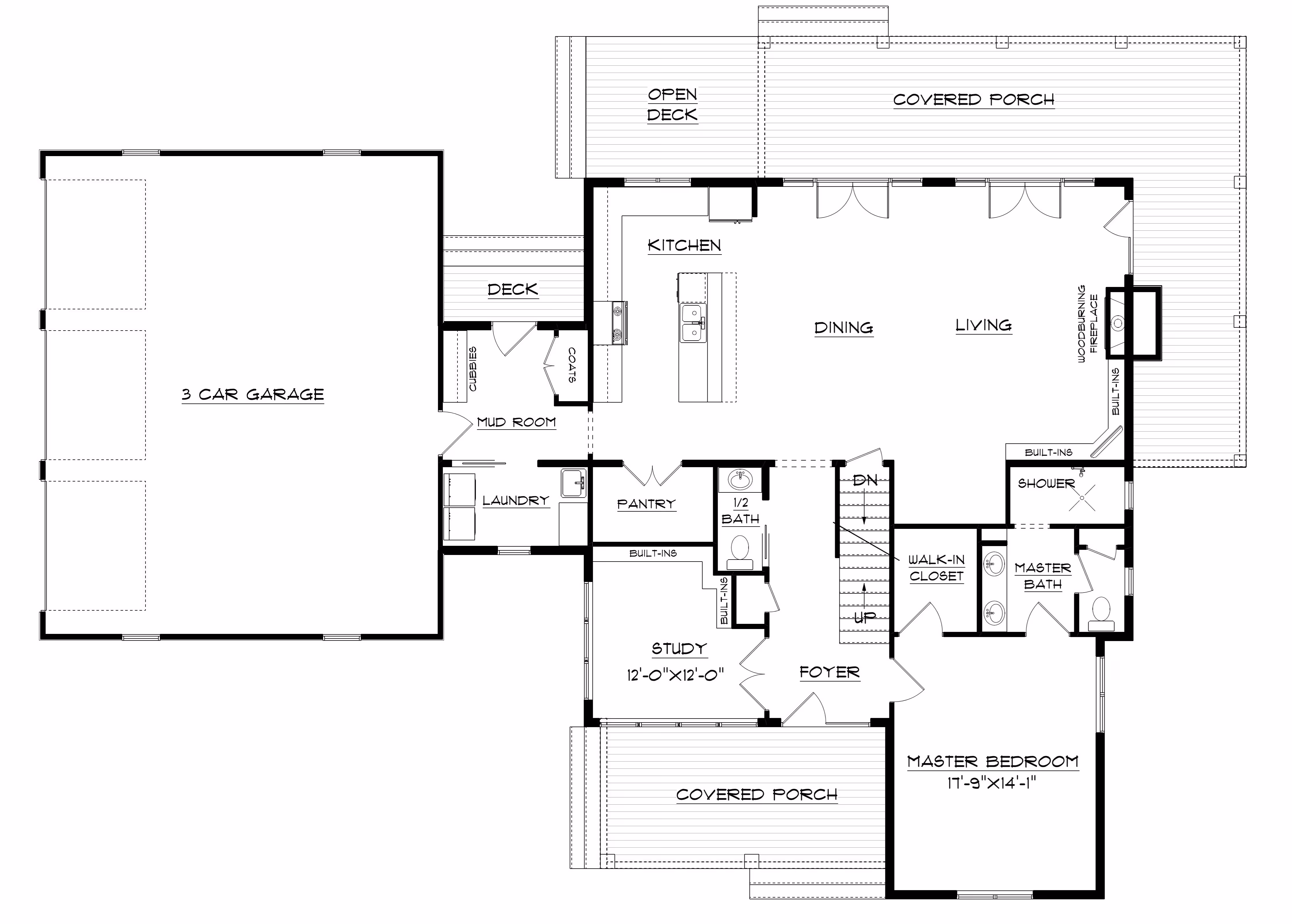
Discover The Hunter, a farmhouse-inspired design with 4 bedrooms, 3.5 baths, and over 3,100 sq. ft. of living space. A spacious main-floor master suite offers privacy and comfort, while the open kitchen, dining, and living area create the perfect hub for family gatherings. Upstairs, two generous bedrooms, a loft, and a bonus room give everyone space to spread out, while the finished basement option adds a rec room, guest suite, and storage. With its 3-car garage, covered porch, and seamless indoor-outdoor flow, The Hunter is built for modern living with timeless charm.
Check out the perspective renderings and detailed floor plan to imagine how this home can come to life on your lot. What’s Included When We Build Your Home:
Ready to Build? Your dream home starts here. Contact us today to schedule a consultation and site review, and let’s bring The Blue Hollow from floor plan to front porch.
Most remodels run over budget. At Bailey Builds, we track every detail so yours finishes on time and on budget—giving you peace of mind while Virginia demand surges.