
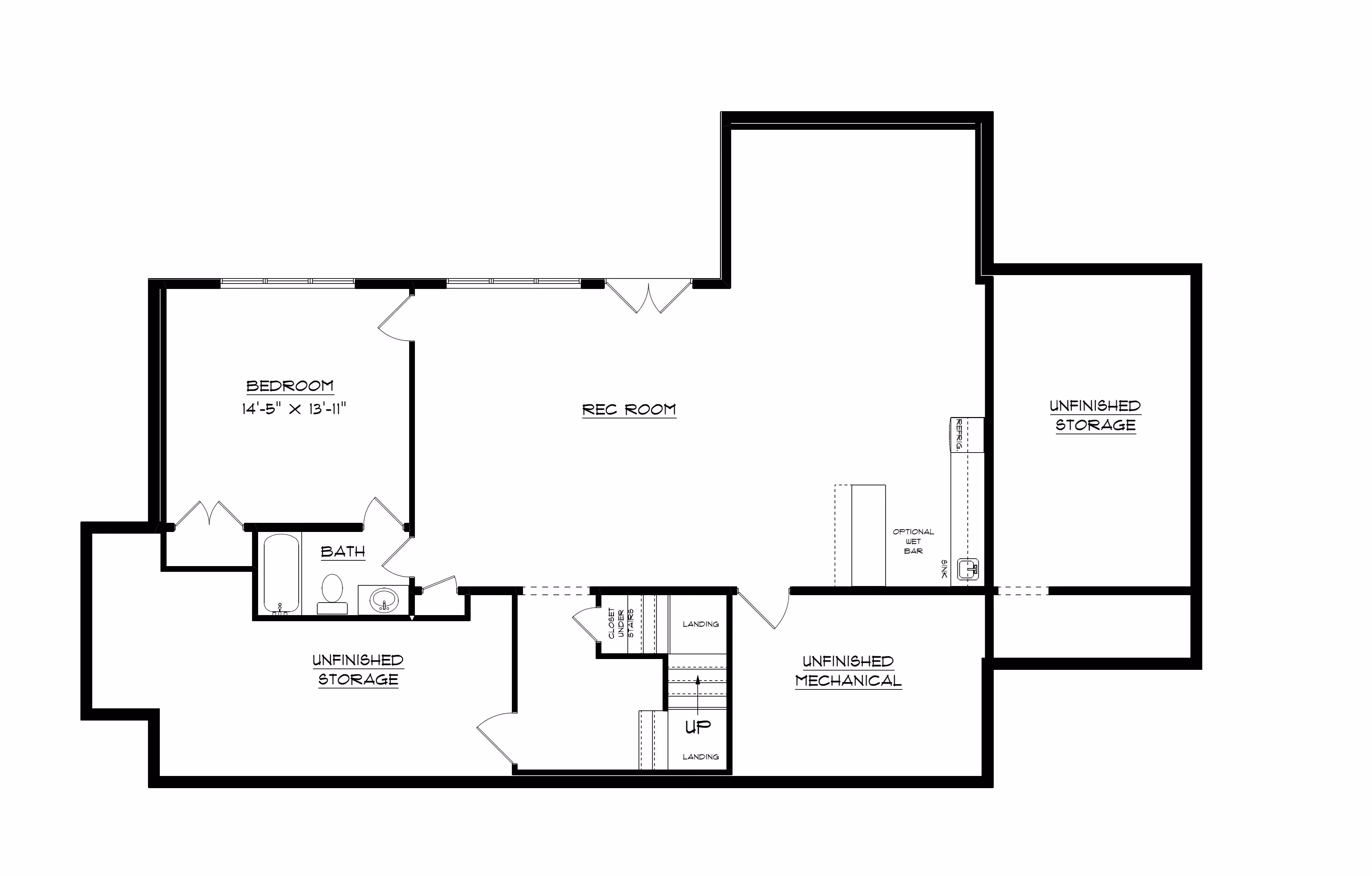
Step inside this stunning 4–5 bedroom, 3.5–4.5 bath home where timeless farmhouse style blends seamlessly with modern comfort. The open-concept great room flows into a chef’s kitchen and dining space, perfect for gatherings. Retreat to the main-level master suite with spa-inspired bath, while upstairs offers spacious bedrooms, a loft, and an optional bonus room. The finished basement adds even more living space with a rec room, guest suite, and storage. With a 3-car garage, wraparound porch, and over 3,000 sq. ft. of customizable living, this home was designed for both everyday ease and unforgettable entertaining.
Check out the perspective renderings and detailed floor plan to imagine how this home can come to life on your lot. What’s Included When We Build Your Home:
Ready to Build? Your dream home starts here. Contact us today to schedule a consultation and site review, and let’s bring The Blue Hollow from floor plan to front porch.
Most remodels run over budget. At Bailey Builds, we track every detail so yours finishes on time and on budget—giving you peace of mind while Virginia demand surges.